Cum era de asteptat, primarul din Sinaia d-l Vlad Oprea, a venit cu o serie de argumente si precizari referitoare la proiectul parcarii… care urmeaza a fi realizata intre gara Sinaia si hotelul Caraiman.
Mai jos, tot ce a postat edilul sef al Sinaiei:
„Sinaia continuă să se dezvolte european.
Primăria Sinaia continuă proiectele pe fonduri europene pentru a construi o infrastructură locală modernă, similară celei din statele europene dezvoltate.
Proiectul Park&Ride face parte dintr-o viziune mai largă asupra orașului, viziune care se axează pe componenta de dezvoltare pentru oameni, biciclete, mijloace de transport verzi. Această viziune a fost votată de către sinăieni. Pasarelele pietonale din Platou – Izvor – 1 Mai, autobuzele electrice, proiectele parcărilor de la DN1, dar și alte măsuri viitoare vor face din Sinaia un oraș mai bine protejat de noxe și trafic auto, mai funcțional, mai prietenos pentru toate categoriile de trafic, dar în special pentru cel nepoluant și neintruziv.
Toate acestea au fost prezentate sinăienilor de mai multe ori. A existat dezbatere publică pe planurile de mobilitate urbană, întâlniri și formulare online. Necesitatea locurilor de parcare este indiscutabilă, dar proiectul Park&Ride nu se referă doar la o parcare. Ci și la căi de acces subteran, ascensoare, acces facil pentru persoanele cu dizabilități, dinspre și de la Gară, integrarea a patru opțiuni de mobilitate spre obiectivele turistice din oraș: pietonal, autobuz verde, bicicletă sau bicicletă/trotinetă electrică.
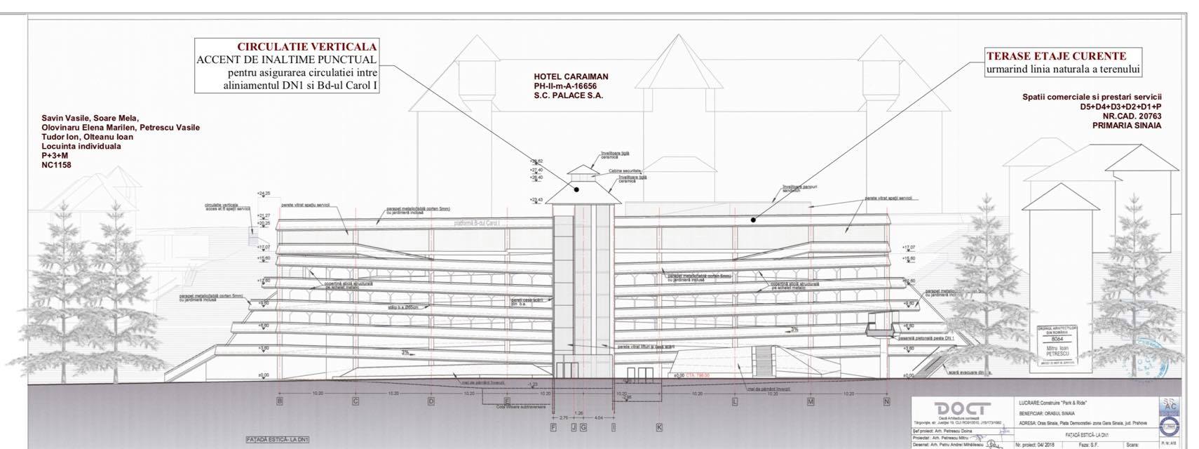
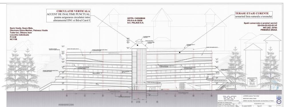
Park&Ride înseamnă constituirea unui element arhitectural perfect integrat în specificul zonei, format din subsoluri și demisoluri retrase succesiv și acoperite de vegetație, care vor urmări linia pantei existente, crearea unui nod de transport intermodal, stație pentru transportul urban, stație pilot de încărcare electrică, spații verzi-pietonale, accese carosabile, utilități și branșamente. Este un proiect necesar, aflat în inderdependență cu alte proiecte. Și atenție, nu este singura parcare pe care o plănuim pentru zona aflată în vecinătatea DN1.
Motivele sunt simple: avem aproape 700 de navetiști, dar și un număr mare de turiști sau oameni de afaceri care poposesc în Sinaia pentru câteva ore sau cateva zile. Cea mai bună variantă atât pentru ei, cât și pentru comunitate, este intrarea direct din DN1 într-o parcare modernă, unde iși pot lăsa în siguranță automobilul, pentru ca apoi să acceseze facil zona centrală a orașului, pe jos, cu autobuzul sau cu bicicletele si trotinetele electrice care vor putea fi închiriate de pe esplanada creată sus, la Bulevardul Carol I. Astfel, dupa modelul confirmat de experienta altor orase europene, minimalizăm traficul auto în interiorul orașului și protejăm zonele istorice de și mai multe mașini parcate pe trotuare sau carosabil, ambuteiaje și trafic sufocant în sezon.
Va fi un punct de acces real către oraș. O intrare modernă, integrată, prietenoasă, adaptată nevoilor de azi, din 2019. Foarte important de precizat: este un proiect care va pune în valoare clădirile din jur. Hotelul Caraiman, primul hotel al orașului, va câștiga pe latura estică o espalandă pietonală, o prelungire la nivel a Parcului Dimitrie Ghica, iar oamenii vor putea să admire această clădire de patrimoniu din unghiuri inaccesibile azi. La fel și Gara, surghiunită de centura orașului – DN1 – factorul poluant numărul unu zonei. Terasa care va rezulta din proiect va putea reprezenta un bun punct de belvedere asupra celor trei Gări, care nu pot fi admirate de nicăieri în acest moment, dinspre oraș.
Atașez schițele proiectului pentru o mai bună înțelegere, dar trebuie menționat că există câteva amendamente: proiectul final va avea pasaj subteran dinspre gară, nu pasarelă, iar turnul (casa liftului) nu va exista în forma prezentată în proiectul final. Toată partea de sus, ieșirea la Bulevardul Carol I va fi o esplanadă pietonală. Vă asigur că vor exista prezentări detaliate, inclusiv cu imagini și randări, ale tuturor proiectelor câștigate spre finanțare.
Sinaia se dezvoltă verde, ca un oraș smart și o stațiune modernă, iar asta ne obligă să găsim alternative viabile problemelor actuale.
Îi felicit pe colegii din Primărie alături de care am obținut această finanțare de peste 4,5 milioane de euro pentru orașul Sinaia. Este un proiect în care cred și care a fost realizat cu responsabilitate față de mediu, față de patrimoniu, dar și față de nevoile oamenilor.
Documentatia noastra a fost intocmita profesionist, dovada aprobarea proiectului.
Sinaia se ambiționează să fie in avangarda orașelor României. Vom continua pe același drum, vom urma bunele practici europene pentru a crește calitatea vieții pentru sinăieni și a face zilele turiștilor cât mai relaxante.
La Sinaia proiectele europene continuă .Sinaia rămâne și se dezvoltă ca cea mai frumoasă stațiune din România.
Pentru oameni facem toate acestea si cei de buna credință sunt mandri de proiectele noastre.
Foarte puțini vor fi cei care vor încerca să ne abată de la calea corectă, dar vom continua, chiar și în cazul lor, să le prezentăm avantajele incontestabile și ușor de dovedit, ale proiectelor noastre pentru Sinaia!”
…
In toata tara, echipele Salvamont au tot felul de actiuni de amenajare a traseelor turistice, de inlocuire a indicatoarelor vechi, reparare cabluri etc. La Busteni am vazut recent mai multe actiuni dar, am observat ca nici echipa din Sinaia nu este mai prejos :)
Tot legat de Salvamont, am auzit ca a fost gasit Andrei Haiduc, turistul disparut in iarna…
Poze cu actiunea Salvamont Sinaia:
Amplasate exact unde era nevoie.
Imaginile apartin Salvamont Sinaia.


